FacebookPixel 4+1 Bedrooms - Villa - Quarteira - Loulé
Send property to a friend
Know more »
captcha
Required fields *

4+1 Bedrooms - Villa - Quarteira - Loulé

4 500 000 €
Follow property Receive an alert when there is a Price Drop
Name
Enter the image code.
captcha
Code
5
5
1
466,15 m²
560,05 m²
1640 m²
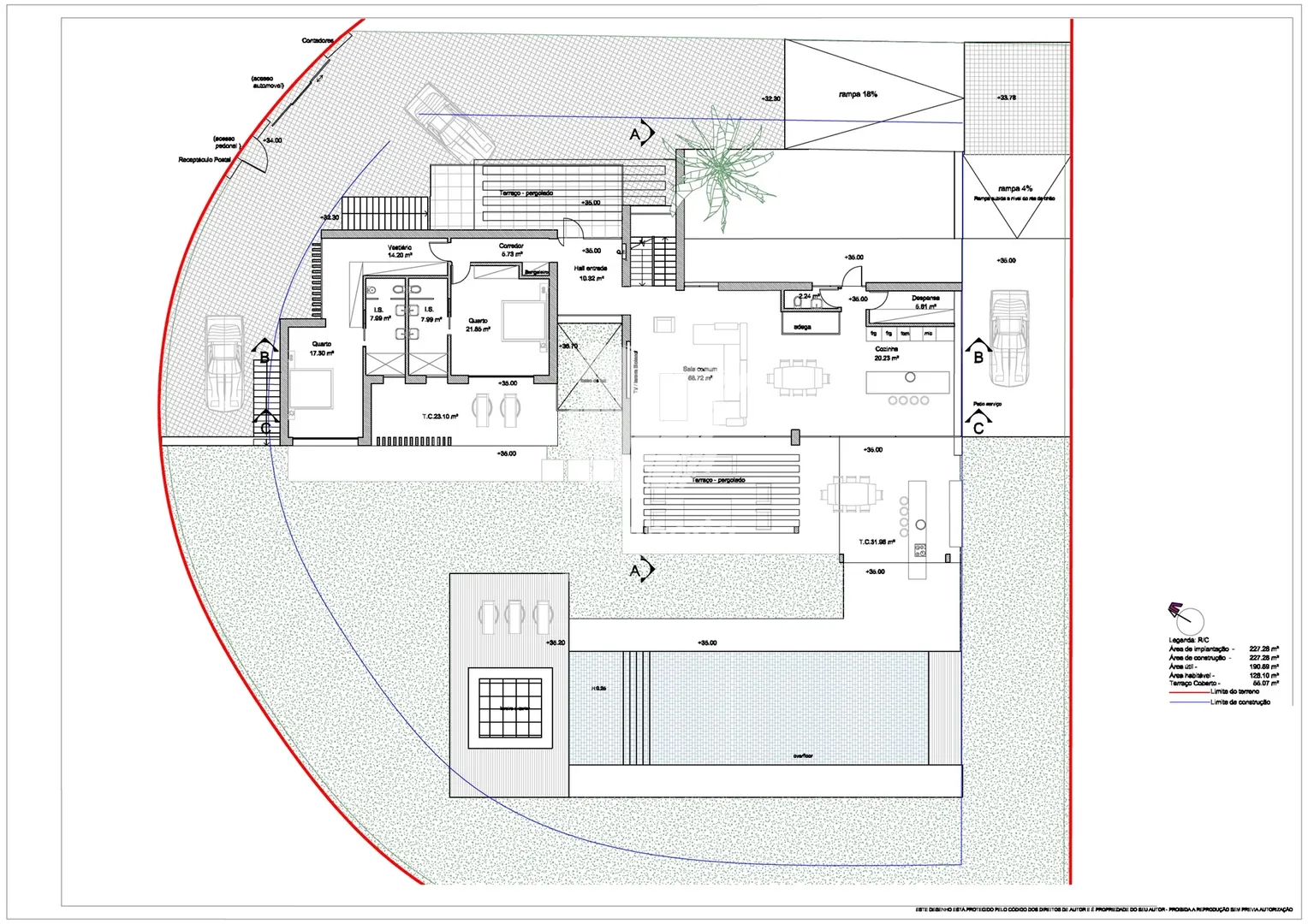
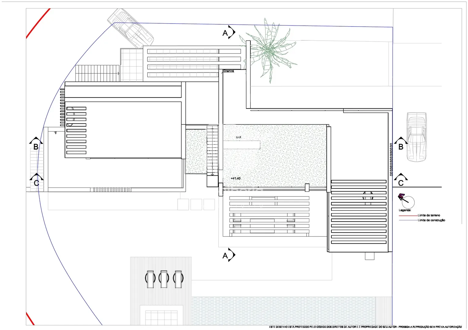
4+1 Bedroom Villa in Vila Sol

This magnificent villa, currently under construction and located next to one of the most prestigious golf courses in Vilamoura, Vila Sol Pestana, stands out for its modern design, comfort, and high-quality finishes.

The ground floor features a modern Italian kitchen with an island in an open-plan layout that seamlessly connects to the living and dining areas, creating a spacious and welcoming environment. This area is complemented by a functional pantry and an elegant wine cellar. Additionally, this floor includes two en-suite bedrooms, designed to provide comfort and privacy.

On the first floor, the property offers two more en-suite bedrooms, each with walk-in closets and access to spacious balconies. These outdoor areas are perfect for enjoying delightful views and abundant natural light.

The basement includes a large garage, a laundry room, a storage area, and a technical room housing essential infrastructure. This space can also be converted into an additional en-suite bedroom, further enhancing the villa’s functionality.
The outdoor area is highlighted by a magnificent swimming pool surrounded by a carefully landscaped garden, creating a relaxing an private environment. Additionally, there is a fully equipped outdoor kitchen, ideal for al fresco dining and hosting family or friends.

At the top, the roof terrace offers a generous space for leisure, featuring a bar and areas perfect for relaxation and socializing.
The entire villa is equipped with built-in air conditioning in every room and underfloor heating, ensuring a comfortable environment throughout the year.
This is a unique property, designed for those who value luxury, modernity, and a prime location in Vilamoura.

Don’t miss this opportunity—schedule your visit with us today!
Property Type House
Typology 5 Bedrooms
Objective Sell
Condition Under Construction
Price 4 500 000 €
Year of Construction 2025
Country Portugal
District Faro
County Loulé
Parish Quarteira
Zone Quarteira
Jennifer Lopes
Jennifer Lopes
Chamada para a rede móvel nacional
I would like to be contacted
Date
Hour
Name
Contact
Message
captcha
Code
General Features
General
  •  
Rooms
Rooms Area Floor Walls Ceilings Comments
 
Surroundings
  •  
Facilities
  •  
Domotic System (Home automation)
  •  
Renewable Energy
  •  
See too
  • 6 Bedrooms - Villa - Loulé, Algarve
  • 6 Bedrooms - Villa - Loulé, Algarve
  • 6 Bedrooms - Villa - Loulé, Algarve
  • 6 Bedrooms - Villa - Loulé, Algarve
  • 6 Bedrooms - Villa - Loulé, Algarve
6 Bedrooms - Villa - Loulé, Algarve
Faro, Loulé
4 000 000 €
6 Bedrooms - Villa - Loulé, Algarve
4 000 000 €
6
7
1
679 m² Gross Area
679 m² A. Private Gross
451 m² Useful area
2921 m² Land Area
Contactar
  • 5 Bedrooms - Villa - Loulé
  • 5 Bedrooms - Villa - Loulé
  • 5 Bedrooms - Villa - Loulé
  • 5 Bedrooms - Villa - Loulé
  • 5 Bedrooms - Villa - Loulé
5 Bedrooms - Villa - Loulé
Faro, Loulé
3 745 000 €
5 Bedrooms - Villa - Loulé
3 745 000 €
5
6
1
647 m² Gross Area
647 m² A. Private Gross
411 m² Useful area
2368 m² Land Area
Contactar
  • 4 Bedrooms - Villa - Loulé
  • 4 Bedrooms - Villa - Loulé
  • 4 Bedrooms - Villa - Loulé
  • 4 Bedrooms - Villa - Loulé
  • 4 Bedrooms - Villa - Loulé
4 Bedrooms - Villa - Loulé
Faro, Loulé
3 500 000 €
4 Bedrooms - Villa - Loulé
3 500 000 €
4
5
1
602,39 m² Gross Area
602,39 m² A. Private Gross
381,9 m² Useful area
2232 m² Land Area
Contactar
We are available to help you I would like to be contacted
Date
Hour
Name
Contact
Message
captcha
Code
What is responsible research
This search allows you to obtain results that are more tailored to your financial availability.